sec.Buiucani
Str. Hotinului€135,000
Descriere
Elite Realty vă oferă spre vânzare un duplex exclusiv în sectorul Buiucani, str. Hotinului 1:
- Amplasat pe teren cu suprafața -1 ar;
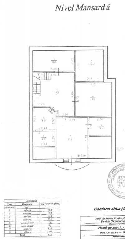
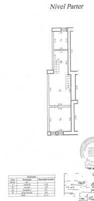
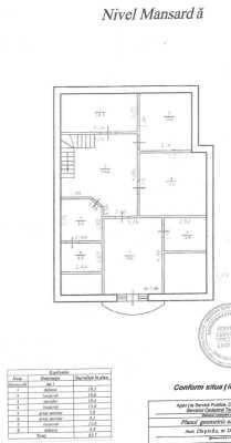
- Planificare bună: (demisol antreu, parter: bucătărie, hol, bloc sanitar, spațiu de depozitare, nivel 2: 3 odăi, living, 2 garderobe, bloc sanitar, terasă);
- O mică curte în fața casei;
- Locație cu acces la transportul public, în preajmă moldexpo.
Cu spații luminoase și o compartimentare eficientă, acest loc vă oferă baza perfectă pentru un trai confortabil și modern.
Poate fi noul vostru acasă – personalizat după gustul dumeavoastră!
Imaginile spun multe, dar realitatea convinge cu adevărat.
Programați o vizionare și descoperiți personal tot ce are de oferit această proprietate!
Găsim împreună locuința ideală pentru dumneavoastră!
BENEFICIILE colaborării cu Elite Realty:
- GRATUIT – Consultație despre creditul Ipotecar, Prima Casă;
- GRATUIT – Consultație Juridică;
- Comision 0% pentru cumpărători;
- Poți achita comod în rate cu doar 15% rata inițială sau programul guvernamental Prima Casă cu 0% prima rată;
- Garanția cumpărătorului.

























